Change of use of premises in Amara
The project includes the interior renovation and change of use of an existing premises for its transformation into a dwelling, located on the first floor of a residential building in the Ensanche de Amara, with access from Ontziola Street and a facade towards Eibar Square, in Donostia-San Sebastián.
The intervention takes place in a space previously used as an office, with an approximate floor area of 75 m², and is planned without affecting the load-bearing structure or the building envelope. The main objective of the project is adapt the space for residential use, ensuring compliance with urban planning regulations, habitability standards and the Technical Building Code.
The proposal defines a functional and well-organized housing, with a clear distinction between day and night areas. The resulting program includes an integrated living-dining-kitchen space, master bedroom, full bathroom and entrance hall, optimizing the available surface area and ensuring adequate lighting, ventilation and interior comfort.
The works include the demolition of existing compartmentalization and the installation of new interior partitions using plasterboard systems with thermal and acoustic insulation. The electrical, plumbing, sanitation, ventilation, and air conditioning systems are also being completely renovated, incorporating technical solutions that meet current energy efficiency and health standards.
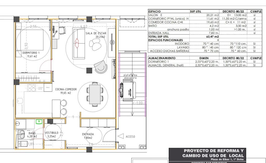
The project justifies compliance with Decree 80/2022 on minimum habitability conditions in the Basque Country, as well as the basic documents of the CTE regarding safety of use, health, protection against noise, safety in case of fire and energy saving, within the scope of a renovation in an existing building.
The result is the transformation of a disused space into a Exterior housing, efficient and compliant with regulations, integrated into a consolidated residential environment and adapted to current habitability needs, without altering the architectural configuration of the building.
Floor Plans
Do you have a project in mind?
From a complete renovation to the rehabilitation of a building.
Tell us your idea and our technical team will analyze its feasibility.


