16 homes in C. Fuenterrabia
The project addresses the comprehensive rehabilitation of a Multi-family building between party walls located in the Fuenterrabia Street No. 22, in the middle urban expansion of Donostia–San Sebastián, within a consolidated environment and with asset protection. The project is being carried out on a listed building. Level D protection by the Special Plan for the Protection of Urban Heritage, which has decisively influenced the intervention criteria.
The proposal includes the complete emptying of the existing building, maintaining and comprehensively rehabilitating the protected facade, and the subsequent structural and functional reconfiguration of the complex to house 16 new homes, a commercial premises on the ground floor y auxiliary uses in basement. The project adapts the property to the current regulatory requirements in the matter of habitability, accessibility, security y energy efficiency, while preserving the architectural values of the original building.
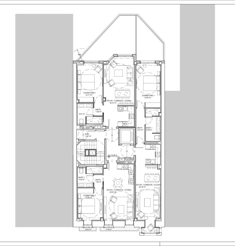
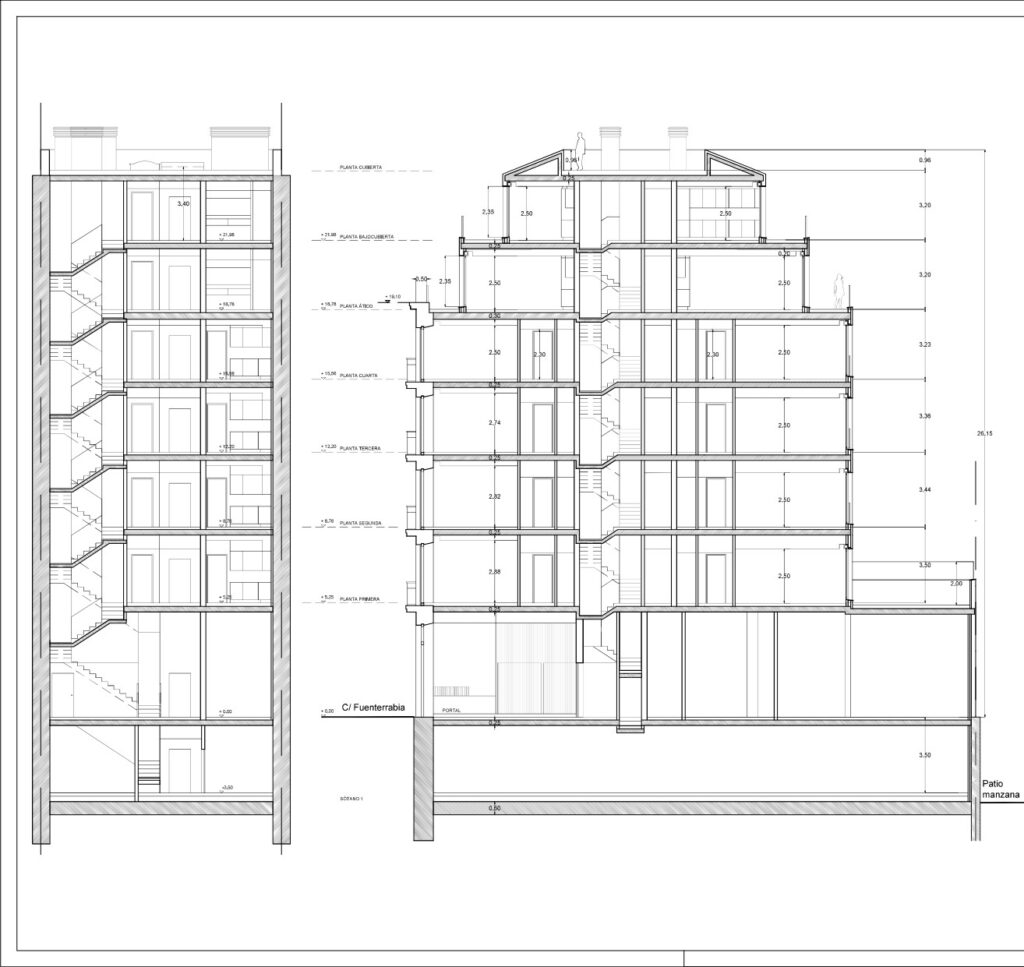
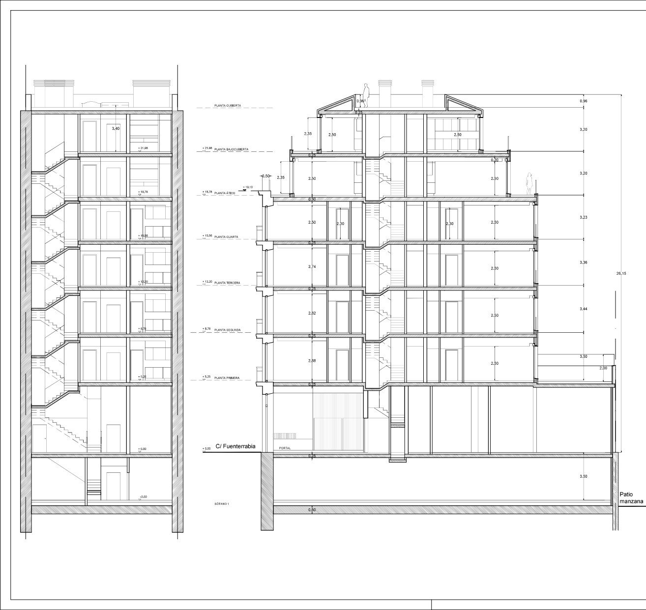
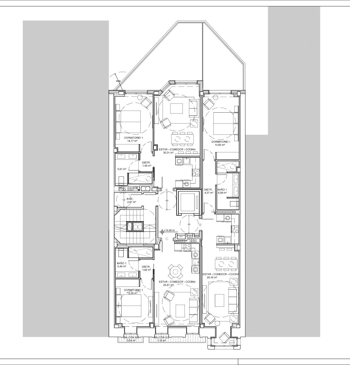
The new building is organized into seven floors above ground —including recessed attic and attic floors— and a basement level, optimizing the plant layout through a vertical communication core which acts as an organizing element and minimizes the residual spaces. The apartments are designed with compact functional programs, prioritizing the natural lighting, the ventilation and the relationship with the block courtyard, where they are arranged terraces and communal outdoor spaces.
From a construction point of view, the project incorporates a new reinforced concrete structural system, a improved thermal envelope and solutions acoustic and energy insulation in accordance with Technical Building Code. The façade is preserved in accordance with the criteria of the protection regime, while the new envelopes are resolved by isolated facades, ventilated roofs y joinery with thermal break, ensuring control of energy demand.
The building facilities They have been designed using criteria of efficiency, incorporating systems of aerothermal energy, high-efficiency air conditioning, Mechanical ventilation with heat recovery y individualized control per dwelling, contributing to thermal comfort and the reduction of energy consumption during the building's useful life.
The result is a project that combines heritage rehabilitation, architectural renovation y technical update, integrating the building into the existing urban fabric and providing it with a new contemporary residential use, aligned with current market demands and current regulatory standards.
Floor Plans
Do you have a project in mind?
From a complete renovation to the rehabilitation of a building.
Tell us your idea and our technical team will analyze its feasibility.






