Housing segregation in C. Bergara
The project consists of the comprehensive renovation and segregation of an existing dwelling located in a residential building of historic character, with the aim of dividing it into two independent dwellings, fully functional and adapted to current regulations regarding habitability, accessibility and safety.
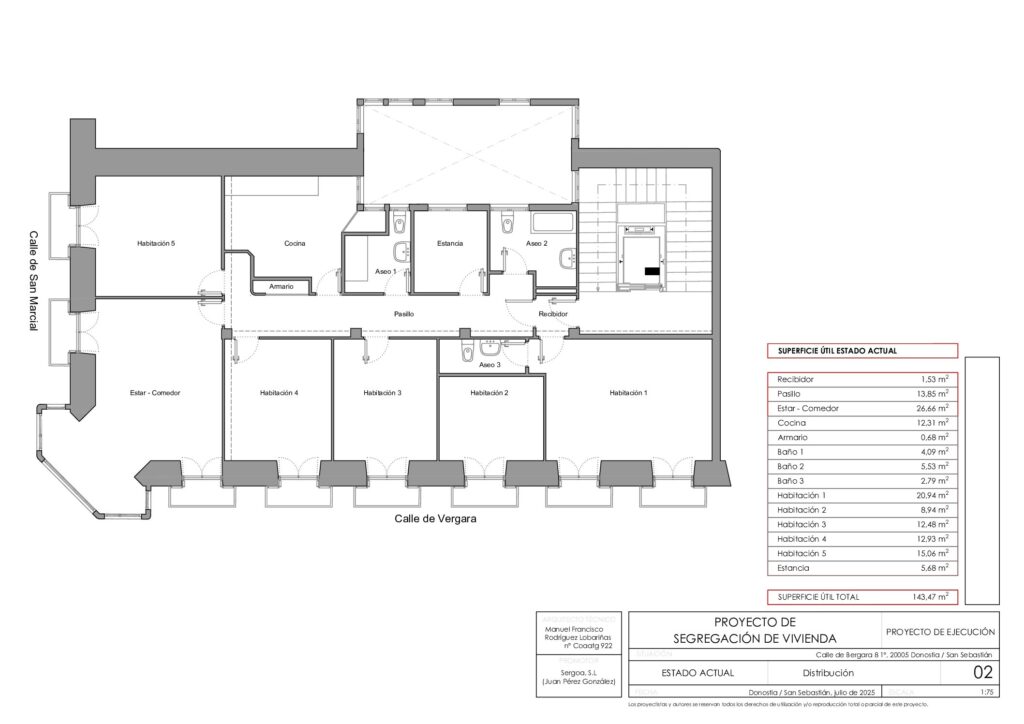
The work is carried out entirely inside the dwelling, without affecting the load-bearing structure or the building envelope, respecting its degree of heritage protection and preserving the original architectural elements. The intervention starts from an initial state with an obsolete layout and original materials and installations, proposing a complete reorganization of the interior spaces.
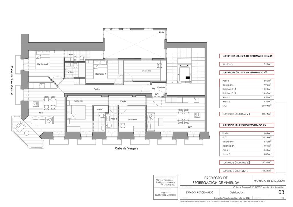
The new design defines two distinct residential units, each with living-dining-kitchen areas, bedrooms, offices and wet areas, fulfilling the minimum surfaces, spatial conditions and functional requirements established by the regional habitability regulations. The layout is optimized based on the existing orientation and the actual possibilities of the property, guaranteeing proper natural lighting and ventilation.
The works include the total demolition of the interior partition walls, The execution of new partitions using laminated plasterboard systems with acoustic insulation, the complete renovation of the electrical, plumbing, sanitation, ventilation and lighting installations, as well as the installation of new interior carpentry and security elements in access points.
The project justifies compliance with Technical Building Code, Especially regarding safety in use, noise protection, health and safety, and fire safety, technical solutions compatible with the nature of the intervention and the existing building are applied. Measures to improve acoustic comfort and the efficiency of the building's systems are also incorporated.
The result is the transformation of a large house into two contemporary, efficient and regulatory-compliant homes, integrated into a protected building and adapted to current residential needs, without altering the architectural identity of the complex.
Floor Plans
Do you have a project in mind?
From a complete renovation to the rehabilitation of a building.
Tell us your idea and our technical team will analyze its feasibility.



