Projects

Commercial property renovation and Change of use

Comprehensive Renovation of Local in C.Arrasate

The project consists of the interior renovation of a commercial premises Located on the ground floor and mezzanine of an existing residential building, at 9 Arrasate Street, in Donostia-San Sebastián. The work is carried out entirely within the premises, without affecting the load-bearing structure or the building envelope.

The intervention begins with a pre-existing condition that included interior partitions, suspended ceilings, finishes, and installations associated with a previous commercial use. The scope of the project includes the complete demolition of the existing interior layout, including lightweight partitions, false ceilings, cladding, joinery and installations, with the aim of leave the space completely clear, clean and prepared for future implementation and use.

The premises have a rectangular layout distributed over two levels, with an approximate usable area of 545 m² on the ground floor and 675 m² on the mezzanine, allowing for great flexibility of use and adaptation to different functional programs. The intervention facilitates a clear understanding of the existing structure and enables a precise survey of the building's current state for subsequent project phases.

The works are limited to controlled interior demolition, respecting the building's structural elements and ensuring the stability, safety, and protection of adjacent spaces. The project also incorporates a specific study of waste management, establishing criteria for separation, removal and final disposal of construction and demolition waste in accordance with current regulations.

The project justifies compliance with municipal urban planning regulations, as well as the applicable basic requirements of the Technical Building Code, particularly regarding structural safety and fire safety, consistent with the limited scope of the intervention.

The result is a open, versatile and technically prepared commercial space, which forms the basis for a future comprehensive reform and adaptation to a new use, fully integrated into the urban and building context of the surroundings.

Comprehensive renovation of the premises on Avenida de la Libertad

The project consists of the comprehensive renovation of a commercial premises Located on the ground floor, at the intersection of Avenida de la Libertad and Calle Fuenterrabía, in one of the most representative commercial areas of Donostia-San Sebastián. The work is carried out entirely inside the premises, without affecting the load-bearing structure or the building envelope.

The intervention begins with a pre-existing condition that included interior partitions, suspended ceilings, finishes, and installations corresponding to a previous commercial use. The scope of the project includes the complete demolition of the existing interior layout, including lightweight partitions, false ceilings, cladding, joinery and installations, with the aim of reconfigure the space to suit a new high-level commercial use.

The venue is organized in two distinct areas; on the ground floor of square geometry and another in basement level with an L-shaped development, which allows a flexible and hierarchical spatial organization, Adapted to the functional and representative needs of a luxury jewelry store, this configuration facilitates the creation of distinct areas for display, customer service, and support spaces, ensuring a clear understanding of the space and a controlled customer flow.

The works are limited to tasks of controlled interior demolition and new spatial configuration, respecting at all times the structural elements of the building and guaranteeing the stability, safety and protection of the adjacent spaces.

The project justifies compliance with municipal urban planning regulations and applicable basic requirements of Technical Building Code, in particular with regard to structural safety, fire safety and conditions of use, consistent with the scope of the intervention.

The result is a renovated, functional and technically prepared commercial space, Designed to house a luxury jewelry store, fully integrated into the urban environment and in accordance with the quality, representation and safety standards required by this type of activity.

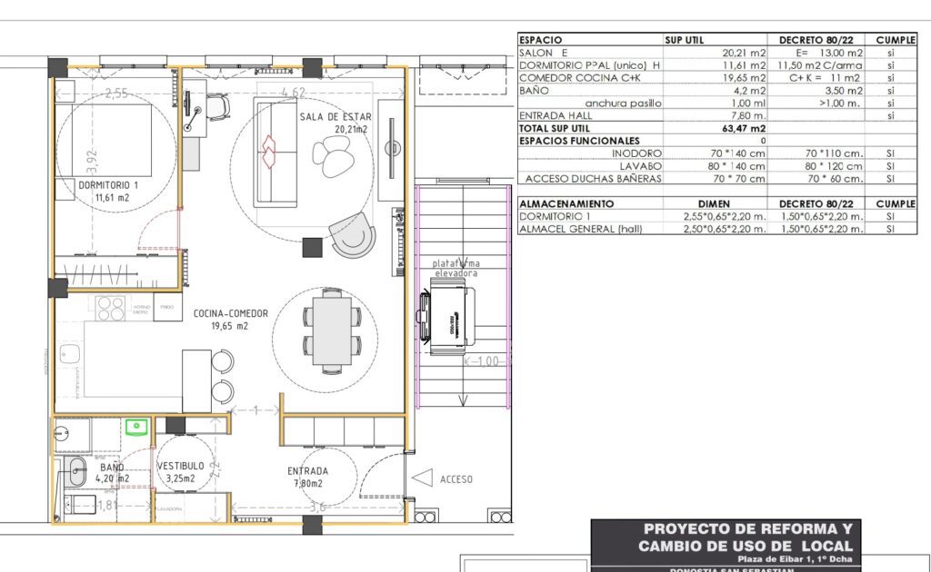
Change of use of premises in Amara

The project includes the interior renovation and change of use of an existing premises for its transformation into a dwelling, located on the first floor of a residential building in the Ensanche de Amara, with access from Ontziola Street and a facade towards Eibar Square, in Donostia-San Sebastián.

The intervention takes place in a space previously used as an office, with an approximate floor area of 75 m², and is planned without affecting the load-bearing structure or the building envelope. The main objective of the project is adapt the space for residential use, ensuring compliance with urban planning regulations, habitability standards and the Technical Building Code.

The proposal defines a functional and well-organized housing, with a clear distinction between day and night areas. The resulting program includes an integrated living-dining-kitchen space, master bedroom, full bathroom and entrance hall, optimizing the available surface area and ensuring adequate lighting, ventilation and interior comfort.

The works include the demolition of existing compartmentalization and the installation of new interior partitions using plasterboard systems with thermal and acoustic insulation. The electrical, plumbing, sanitation, ventilation, and air conditioning systems are also being completely renovated, incorporating technical solutions that meet current energy efficiency and health standards.

The project justifies compliance with Decree 80/2022 on minimum habitability conditions in the Basque Country, as well as the basic documents of the CTE regarding safety of use, health, protection against noise, safety in case of fire and energy saving, within the scope of a renovation in an existing building.

The result is the transformation of a disused space into a Exterior housing, efficient and compliant with regulations, integrated into a consolidated residential environment and adapted to current habitability needs, without altering the architectural configuration of the building.

Scroll to Top