



















Descripción
Amplio local en venta en Zarautz – 374 m² en ubicación estratégica
ETXEBANK INMOBILIARIA presenta este magnífico local situado en Calle Etxepare 6, en la entrada de Zarautz, una zona residencial tranquila y perfectamente comunicada. Su ubicación estratégica ofrece fácil acceso y comodidad, además de contar con zona de aparcamiento cercana.
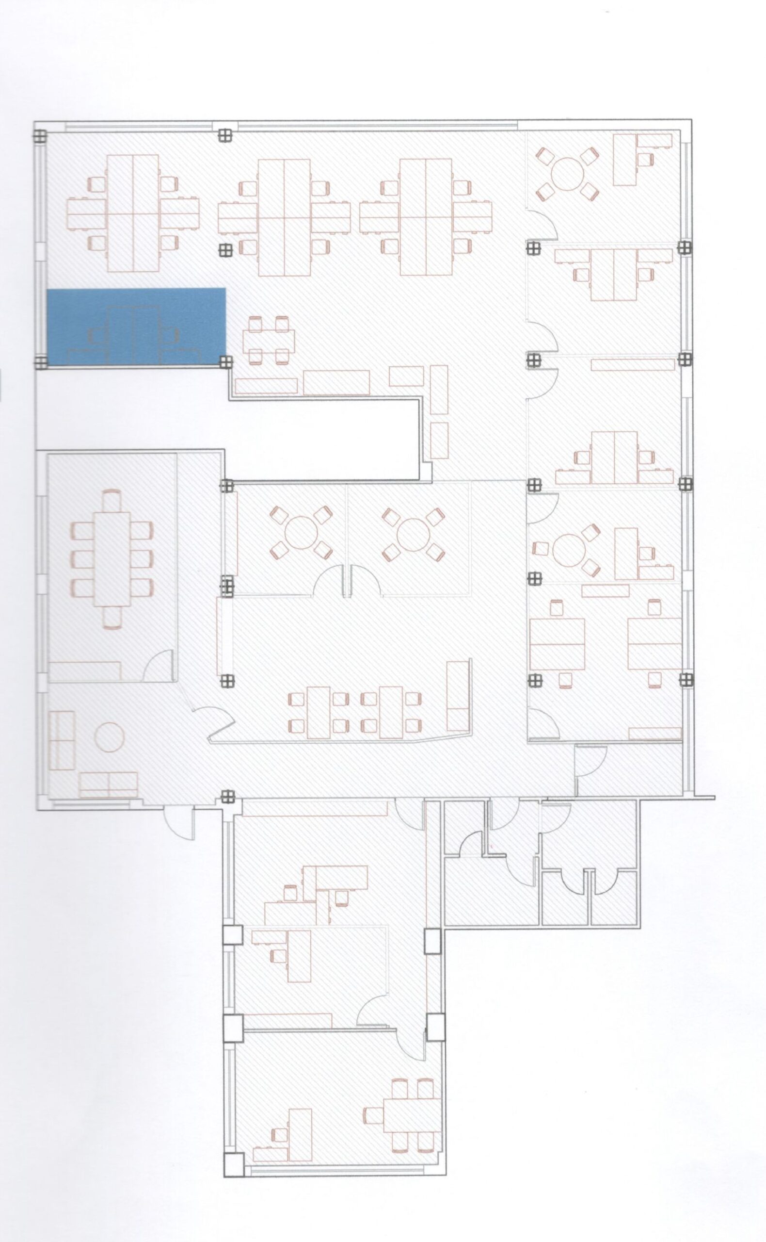
El local de aproximadamente unos 410 m2 construidos, cuenta con 374 m² útiles, distribuidos actualmente en: 10 despachos independientes, incluida una zona de dirección, 1 sala de reuniones, 1 sala de espera, 1 zona común tipo office, un amplio espacio diáfano y aseos independientes para señoras y caballeros.
Todo el inmueble se desarrolla en una sola planta, lo que aporta comodidad y accesibilidad. Hace esquina y es totalmente exterior, con abundante luz natural durante todo el día, que aporta luminosidad y frescura a todas las estancias.
Cuenta con la carpintería exterior renovada, las ventanas con doble acristalamiento tipo Climalit, techo técnico y aire acondicionado instalado, para un mayor confort.
Se trata de un local amplio, muy versátil y listo para adaptarse a múltiples actividades: clínica, asesoría, centro de formación, coworking, oficinas corporativas, consulta profesional o incluso como inversión.
Su combinación de ubicación, tamaño, luminosidad y distribución flexible lo convierten en una oportunidad excepcional en Zarautz.
Características
- 410 m² construidos
- 374 m² útiles
- Estancias:13
- Baños:2
- Buen estado
- Sin amueblar
- Almacen
- Con oficina
- Orientación: Norte, Oeste, Este
- Aire Acondicionado
- Construido en 1974
Edificio
- 1 planta
- Exterior
Videos
¿Quieres saber más?
Si necesitas más información o quieres valorar esta propiedad con nuestro equipo, estaremos encantados de ayudarte.
