




















Descripción
¡Oportunidad única en el corazón de Gros! Presentamos este amplio local comercial en una ubicación inmejorable, a pocos pasos de los Juzgados de la ciudad. Ubicado en un barrio dinámico y en un edificio muy representativo, este local cuenta con una fachada muy visible que atraerá todas las miradas. Con sus 450 m² construidos y 425 m² útiles, distribuidos en dos plantas, es ideal para asesoría, consultoría, compañía de seguros, clínica o centro de formación.
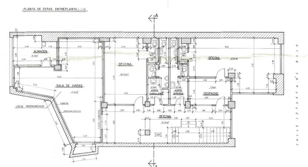
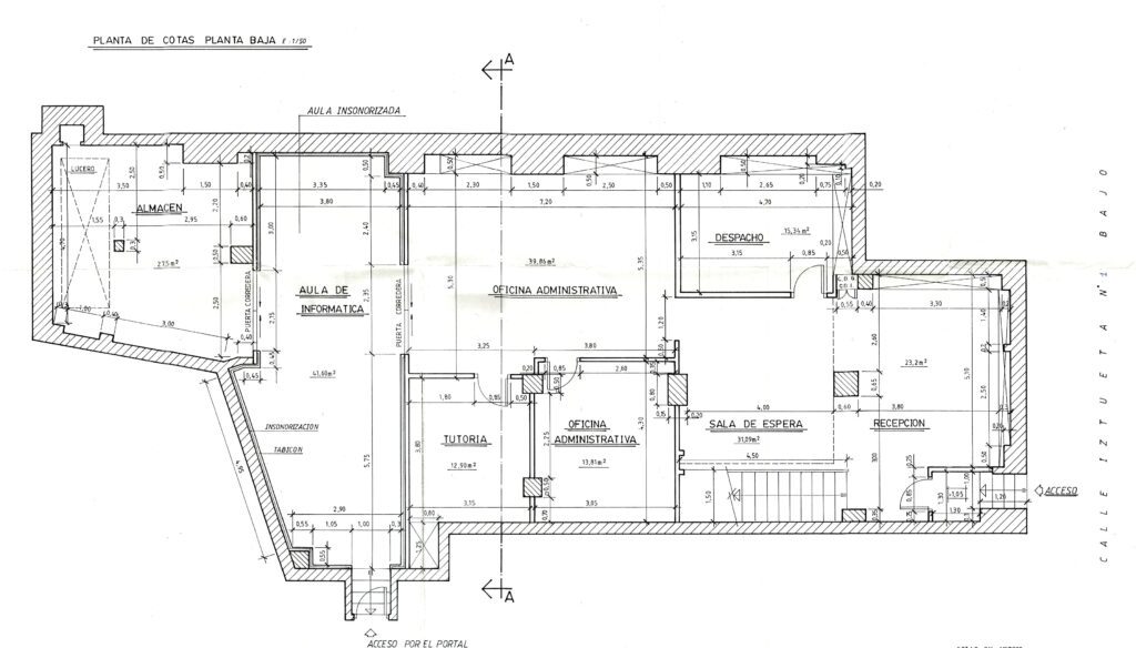
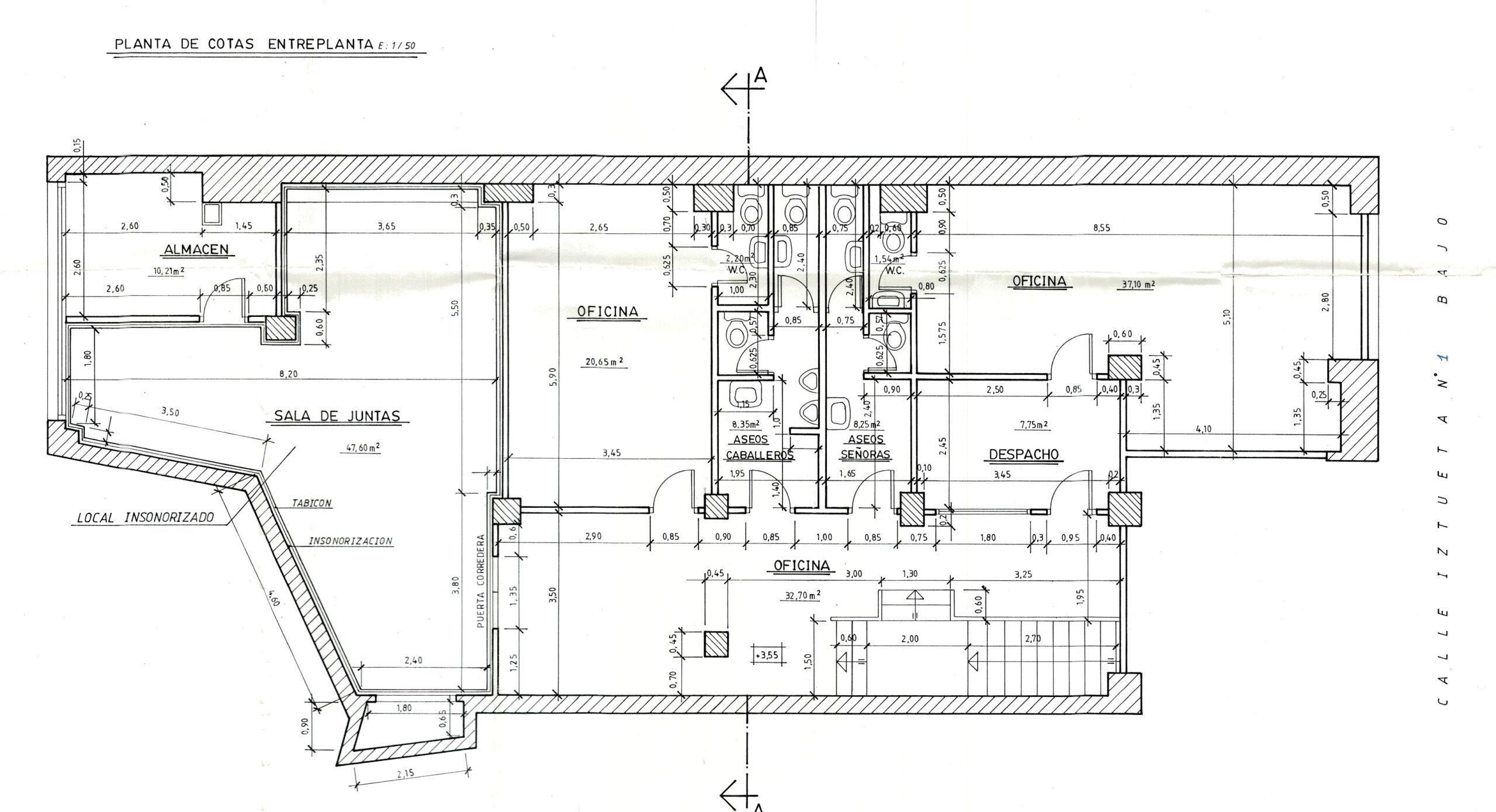
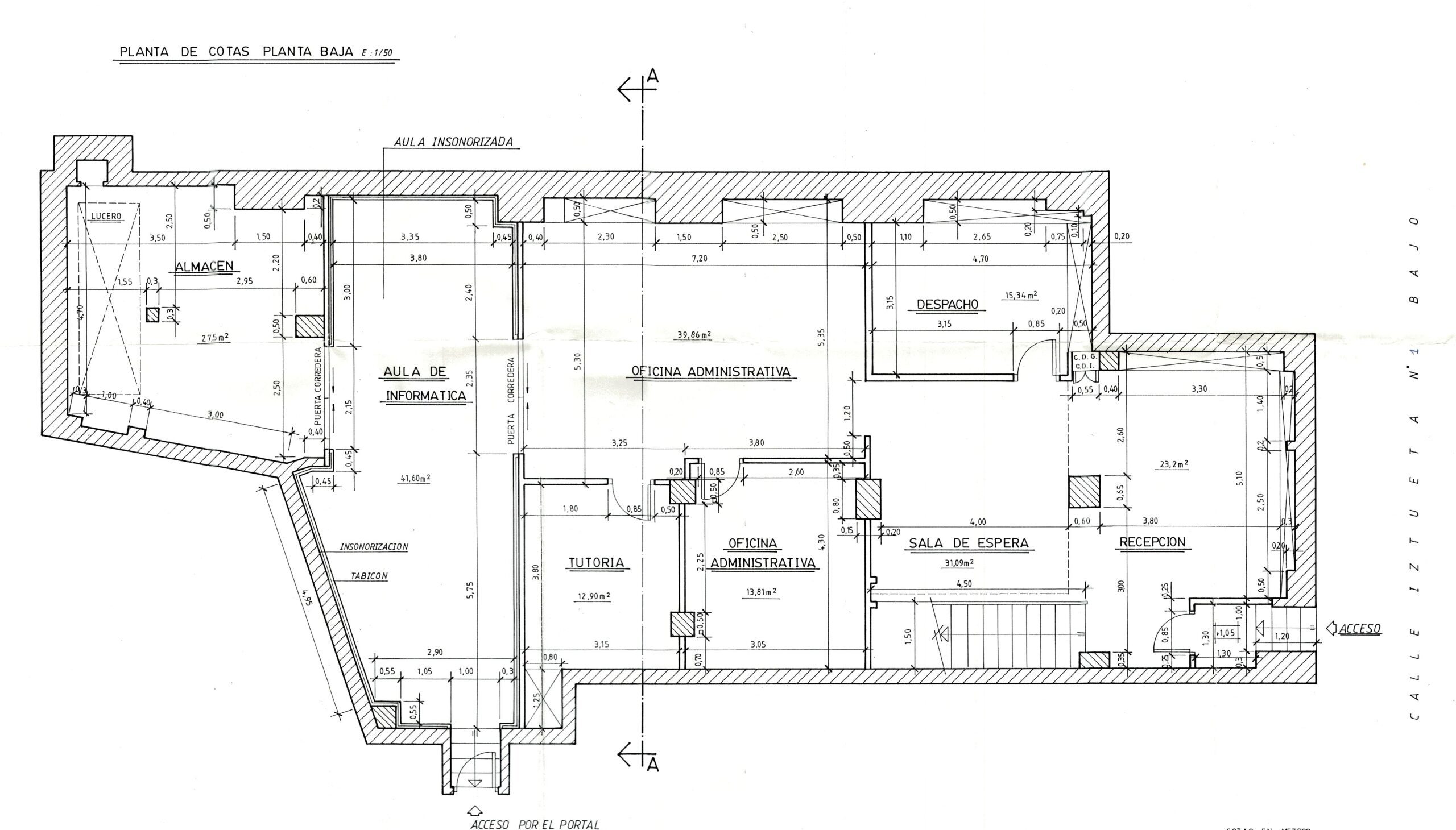
La planta calle, con una superficie útil de 220 m², está perfectamente acondicionada y distribuida en recepción, despachos, sala de formación y almacén. Además, cuenta con una puerta auxiliar que da acceso directo al portal del edificio. La planta alta, con 205 m² útiles, ofrece despachos adicionales, aseos y una amplia sala de juntas, con ventanas que dan a un patio abierto, proporcionando luz natural y ventilación.
Construido en 1921 y situado a pie de calle, este local tiene 5 metros lineales de fachada y está equipado con aire acondicionado para el máximo confort. Con un total de 12 estancias, este espacio versátil se adapta a múltiples usos profesionales. No pierdas la oportunidad de establecer tu negocio en una de las zonas más cotizadas y visibles de la ciudad. ¡Contáctanos para más información y para concertar una visita!
Características
- 450 m² construidos
- 425 m² útiles
- Estancias:12
- Buen estado
- Sin amueblar
- Almacen
- Orientación: Oeste, Noroeste
- Aire Acondicionado
- Construido en 1921
Edificio
- 2 plantas
- Exterior
- Fachada de 5 m
- Entrada auxiliar
- Certificación energética: E
¿Quieres saber más?
Si necesitas más información o quieres valorar esta propiedad con nuestro equipo, estaremos encantados de ayudarte.

