




















Descripción
Inmobiliaria ETXEBANK alquila local de 402m2 construidos con SALIDA de HUMOS y LICENCIA DE ACTIVIDAD DE BAR RESTAURANTE, al lado del futuro nuevo hotel Hilton situado en el edificio Bellas Artes de la calle Urbieta. Al lado de la Estación del Topo y la Plaza Easo. Zona de gran transformación y revalorización. Gran densidad de población paso de gente.
Local dividido en tres plantas:
Planta Baja: superficie 102m2 divididos en zona mesas, cocina, aseos y almacén. La parte del almacén da a una terraza de un patio de manzana que le aporta mucha luz al local. Techos altos en la zona entrada.
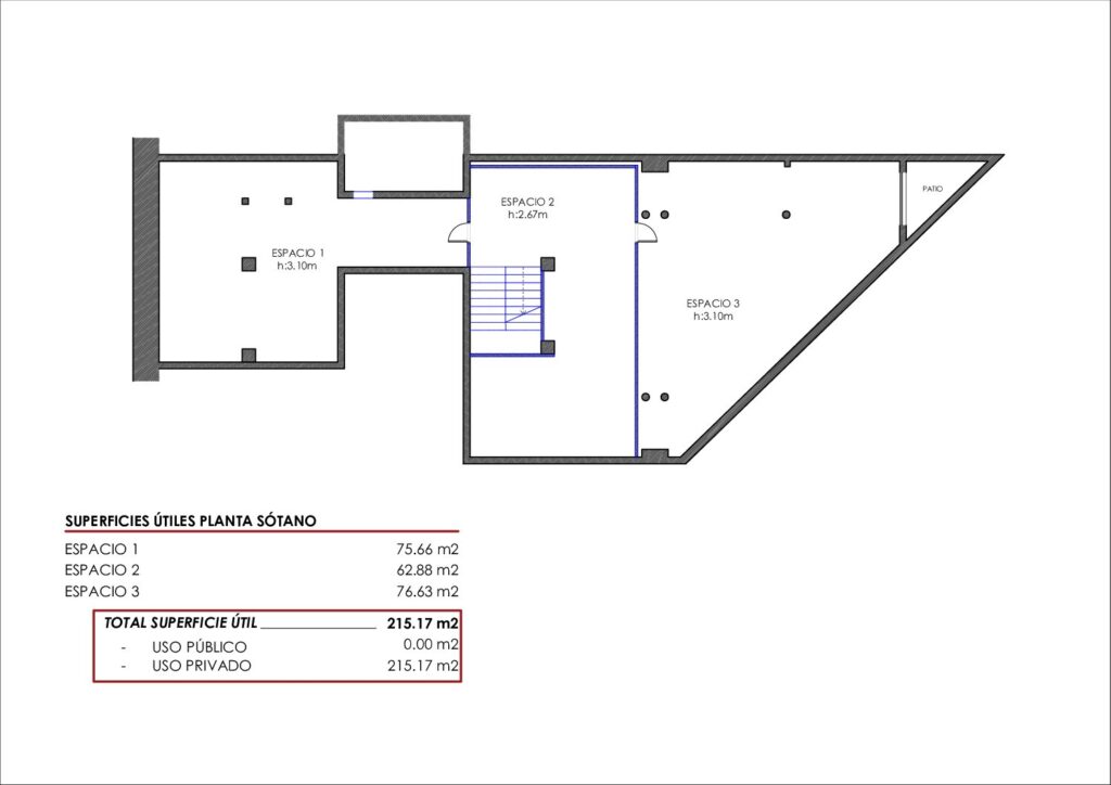
Planta Sótano: superficie 250m2 dividido en tres zonas muy diáfanas. Acceso mediante amplia escalera.
Entreplanta: 50m2 con 3 ventanas hacia el patio de manzana.
Fachada 5 metros lineales
Licencia hostelería grupo 2.
El local necesita acondicionamiento y se otorgan carencias de renta para la obra.
Zona muy bien comunicada y tranquila, ideal para hostelería, centro médico, academia, clínica, supermercado.
El arrendatario debe aportar: 2 meses de fianza legal + garantía adicional ( a negociar).
Características
- 402 m² construidos
- 352 m² útiles
- Baños:2
- A reformar
- Con licencia
Edificio
- Exterior
- Fachada 5 m
- Salida de humos
- Certificación energética: F
Planos
¿Quieres saber más?
Si necesitas más información o quieres valorar esta propiedad con nuestro equipo, estaremos encantados de ayudarte.


