














































Descripción
Piso en venta en el corazón de Gros
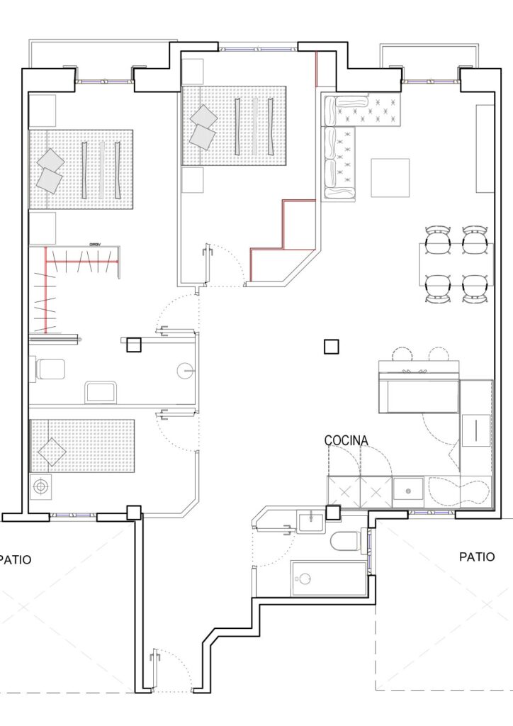
Descubre este encantador piso en venta, ubicado en una de las zonas más vibrantes de Gros, a solo cinco minutos del centro de la ciudad. Este edificio de estilo romántico, con su impresionante fachada de piedra y miradores, ofrece un carácter único que te enamorará. La propiedad cuenta con 87 m² construidos y una distribución ideal que incluye un hall recibidor, una cocina funcional, un baño con ventana al patio y tres amplias habitaciones dobles, todas con acceso a un balcón corrido que aporta luz natural a patio de manzana.
El piso, que necesita una reforma integral, presenta techos altos de 3 metros y puertas de gran altura, lo que brinda una sensación de amplitud y elegancia. Además, el edificio ha pasado la ITE y cuenta con fachadas reformadas y un portal renovado. La comodidad está garantizada con un ascensor nuevo y la vivienda es apta para personas con movilidad reducida.
Nuestro departamento de proyectos puede asesorarte con las posibilidades de distribución de esta vivienda y un presupuesto de costes de la obra. Incluimos un plano con la posible distribución actualizada.
La ubicación es inmejorable, rodeada de todos los servicios necesarios como supermercados, ambulatorios y paradas de bus. No pierdas la oportunidad de personalizar este espacio a tu gusto y convertirlo en el hogar de tus sueños. ¡Contáctanos para más información y ven a visitarlo!
Características
- 87 m² construidos
- 80 m² útiles
- Dormitorios:3
- Baños:1
- A reformar
- Sin amueblar
- Balcón
- Orientación: Noroeste
- Construido en 1920
Edificio
- 6ª planta
- Interior
- Con ascensor
- Certificación energética: E
Videos
¿Quieres saber más?
Si necesitas más información o quieres valorar esta propiedad con nuestro equipo, estaremos encantados de ayudarte.

