
































Descripción
**Piso en Venta en Jaialai – Oportunidad Única**
Descubre este luminoso piso en la tranquila zona de Jaialai, cerca del Barrio de Gros. Ubicado en una zona residencial tranquila y con excelente comunicación gracias a la parada de bus al lado, este inmueble es perfecto tanto para familias como para inversores.
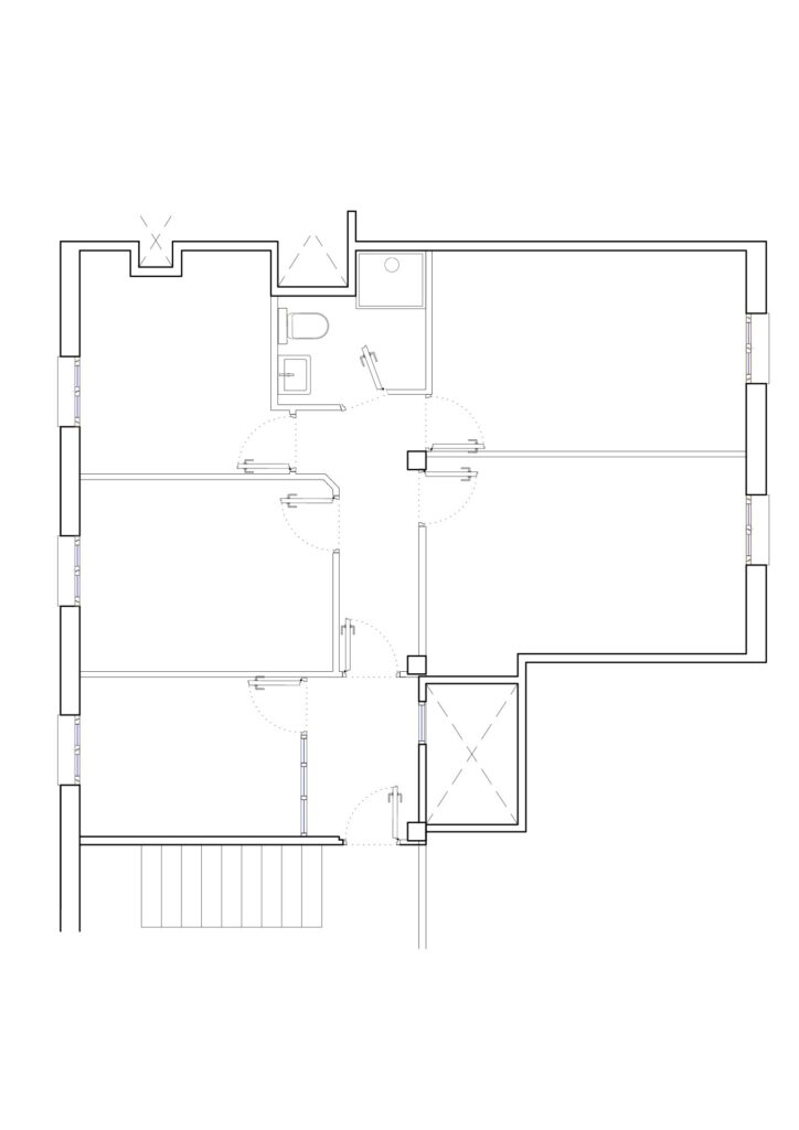
Situado en un edificio de sólida estructura de hormigón, esta vivienda exterior ofrece una distribución óptima con un hall de entrada, acogedora sala, tres habitaciones y un baño. La cocina es funcional y cuenta con instalación de gas natural, además de una caldera individual para el agua caliente. Con una orientación este-oeste, disfrutarás de luz natural durante todo el día.
La propiedad, con 82 m² construidos y 62 m² útiles, incluye un trastero de 6 metros cuadrados en el bajo cubierta, ideal para almacenar lo que necesites. La ITE ha sido pasada y la fachada se encuentra reformada, lo que garantiza la calidad del edificio. Este piso en segunda mano presenta muchas posibilidades de reforma, permitiéndote personalizarlo a tu gusto. Puedes consultar a nuestro departamento de proyectos para obtener ideas.
Ubicado en una zona residencial tranquila y con excelente comunicación gracias a la parada de bus al lado, este inmueble es perfecto tanto para familias como para inversores. No dejes pasar esta oportunidad de adquirir un hogar lleno de potencial y encanto. ¡Contáctanos para más información y ven a visitarlo!
Características
- 82 m² construidos
- 62 m² útiles
- Dormitorios:3
- Baños:1
- A reformar
- Sin amueblar
- Suelo térmico
- Trastero
- Orientación: Sur, Este
- Individual. Gas Natural
- Construido en 1952
Edificio
- 2ª Planta
- Certificación energética: F
Planos
Videos
¿Quieres saber más?
Si necesitas más información o quieres valorar esta propiedad con nuestro equipo, estaremos encantados de ayudarte.
