











































Descripción
**Piso en Venta en el Corazón de la Ciudad – ¡Tu Nuevo Hogar Te Espera! **
Descubre este espectacular piso ubicado en una de las zonas más céntricas de la ciudad. Este edificio de estilo romántico, rehabilitado en 2003, destaca por su impresionante fachada de piedra de sillería y su gran valor arquitectónico. Con techos altos y una luminosidad excepcional, este hogar ofrece un ambiente acogedor y elegante.
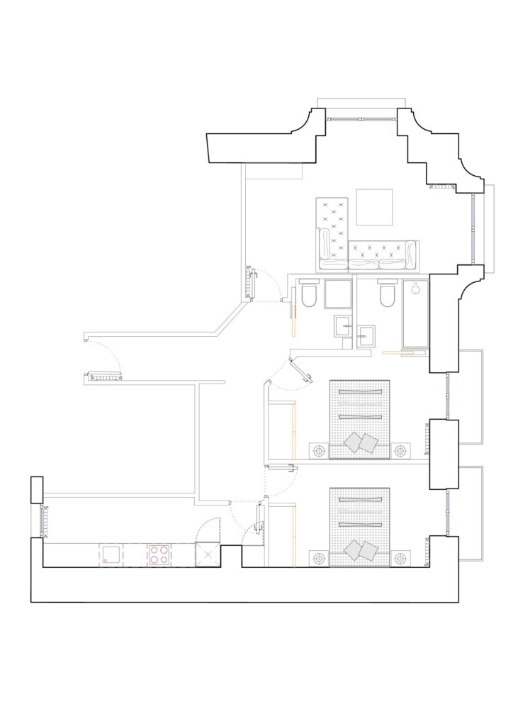
El salón, dotado de dos grandes ventanales que van hasta el suelo, proporciona una vista maravillosa y una entrada de luz natural que ilumina cada rincón. La vivienda cuenta con dos dormitorios exteriores, ambos con acceso a balcones, ideales para disfrutar del aire fresco. El dormitorio principal incluye un baño completo incorporado, mientras que un segundo baño se encuentra en el pasillo, facilitando la comodidad para todos los residentes.
La cocina, equipada y con un patio tendedero cubierto, es perfecta para aquellos que disfrutan cocinar. Además, la propiedad cuenta con armarios empotrados, puertas y suelos de madera que aportan calidez al espacio. La seguridad está garantizada con una puerta de entrada blindada, y el edificio es accesible para personas con movilidad reducida gracias a su portal sin barreras arquitectónicas y amplio ascensor.
Con una superficie construida de 80 m² y 69 m² útiles, este piso es ideal para quienes buscan un hogar espacioso y cómodo. La calefacción de gas individual con radiadores asegura un ambiente cálido durante los meses más fríos. No pierdas la oportunidad de vivir en este encantador piso que combina estilo, confort y ubicación inmejorable. ¡Contáctanos para más información y ven a verlo!
Características
- 80 m² construidos
- 69 m² útiles
- Dormitorios:2
- Baños:2
- Buen estado
- Sin amueblar
- Armarios empotrados
- Cocina totalmente equipada
- Balcón
- Orientación: Norte, Oeste, Hace esquina
- Individual. Gas Natural
- Construido en 2003
Edificio
- 1ª
- Exterior
- Con ascensor
- Certificación energética: E
Planos
¿Quieres saber más?
Si necesitas más información o quieres valorar esta propiedad con nuestro equipo, estaremos encantados de ayudarte.
