Reforma Integral del Local en Avenida de la Libertad
El proyecto consiste en la reforma integral de un local comercial situado en planta baja, ubicado en la intersección de la avenida de la Libertad con la calle Fuenterrabía, en uno de los ejes comerciales más representativos de Donostia–San Sebastián. La actuación se desarrolla íntegramente en el interior del local, sin afección a la estructura portante ni a la envolvente del edificio.
La intervención parte de un estado previo con compartimentaciones interiores, falsos techos, acabados e instalaciones correspondientes a un uso comercial anterior. El alcance del proyecto contempla el derribo completo de la distribución interior existente, incluyendo tabiquería ligera, falsos techos, revestimientos, carpinterías e instalaciones, con el objetivo de reconfigurar el espacio para su adecuación a un nuevo uso comercial de alto nivel.
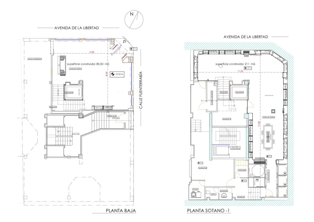
El local se organiza en dos ámbitos diferenciados; en planta baja de geometría cuadrada y otro en planta sótano con desarrollo en forma de L, lo que permite una ordenación espacial flexible y jerarquizada, adaptada a las necesidades funcionales y representativas propias de una joyería de lujo. Esta configuración facilita la creación de áreas diferenciadas de exposición, atención al cliente y espacios de apoyo, garantizando una lectura clara del espacio y un recorrido comercial controlado.
Las obras se limitan a trabajos de demolición interior controlada y nueva configuración espacial, respetando en todo momento los elementos estructurales del edificio y garantizando la estabilidad, seguridad y protección de los espacios colindantes.
El proyecto justifica el cumplimiento de la normativa urbanística municipal y de los requisitos básicos aplicables del Código Técnico de la Edificación, en particular en lo relativo a seguridad estructural, seguridad en caso de incendio y condiciones de uso, en coherencia con el alcance de la intervención.
El resultado es un espacio comercial reformado, funcional y técnicamente preparado, concebido para albergar una joyería de lujo, plenamente integrado en el entorno urbano y acorde a los estándares de calidad, representatividad y seguridad exigidos por este tipo de actividad.
Planos
¿Tienes un proyecto en mente?
Desde una reforma integral hasta la rehabilitación de un edificio.
Cuéntanos tu idea y nuestro equipo técnico analizará su viabilidad.


