Reforma Integral de vivienda en C. Zubieta
Reconfiguración espacial, amplitud y acabados de altas prestaciones
El proyecto plantea la reforma integral de una vivienda de aproximadamente 180 m², originalmente configurada con una distribución propia de los años 70, caracterizada por una compartimentación excesiva, recorridos poco eficientes y la existencia de accesos diferenciados para servicio y vivienda.
La intervención elimina por completo la distribución existente para implantar un nuevo esquema residencial contemporáneo, basado en la apertura de espacios, la claridad funcional y la relación directa con las fachadas y vistas. El resultado es una vivienda amplia, luminosa y perfectamente jerarquizada, acorde a los estándares actuales de una vivienda de alto nivel.
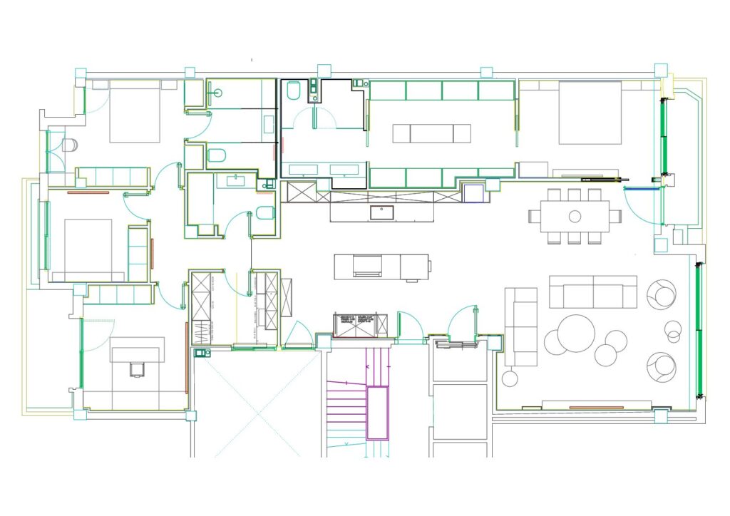
La nueva organización define una zona de día principal compuesta por un gran espacio continuo de salón–comedor y cocina integrada con isla central, concebido como el núcleo de la vivienda. Esta solución favorece la amplitud visual, la flexibilidad de uso y la entrada de luz natural, reforzada por grandes ventanales con carpinterías de mínima sección que maximizan las vistas existentes.
La zona privada se articula mediante un dormitorio principal en fachada, concebido como una suite completa, con baño y vestidor integrados, y una relación directa con el exterior. El programa se completa con tres dormitorios adicionales, uno de ellos con baño incorporado y fachada a Zubieta, garantizando privacidad y confort. En la zona central de la vivienda se dispone un baño completo adicional y un espacio office de apoyo.
Desde el punto de vista material y constructivo, el proyecto apuesta por acabados contemporáneos de alta calidad, con puertas enrasadas de suelo a techo que refuerzan la continuidad visual, pavimento continuo de mortero italiano que aporta uniformidad y elegancia al conjunto, y una cuidada integración de carpinterías y elementos constructivos para lograr una imagen limpia y atemporal.
El resultado final es una vivienda de lujo, amplia y sofisticada, donde la calidad espacial, la optimización funcional y la selección de materiales se combinan para ofrecer un alto nivel de confort, representatividad y calidad arquitectónica.
Planos
¿Tienes un proyecto en mente?
Desde una reforma integral hasta la rehabilitación de un edificio.
Cuéntanos tu idea y nuestro equipo técnico analizará su viabilidad.





